 拡大画像を見る
|
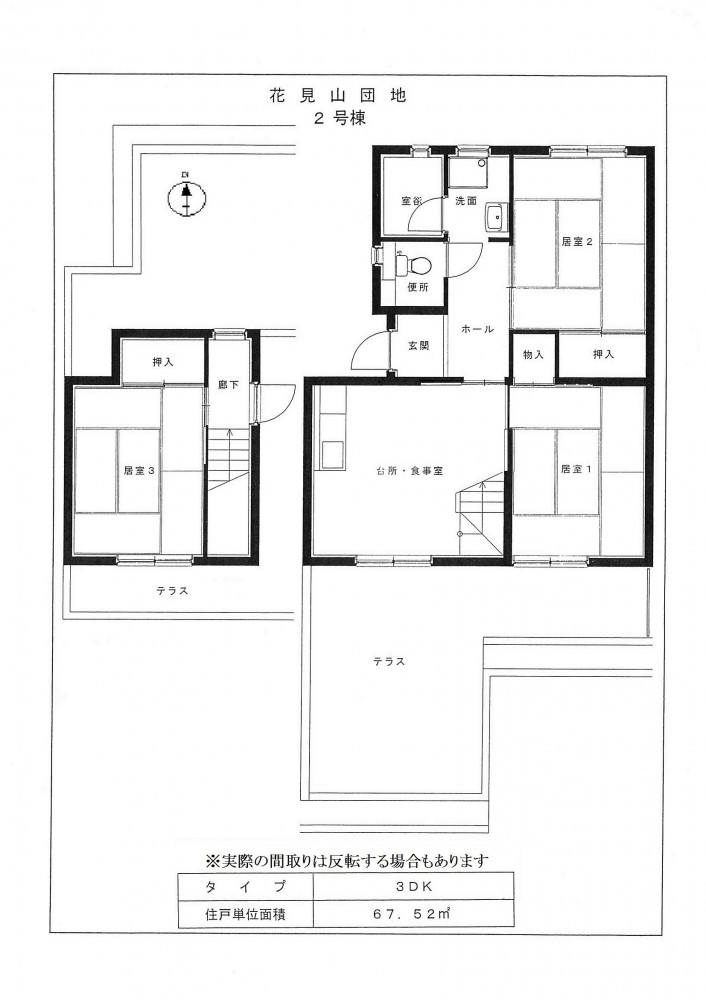
花見山 団地概要
- ●棟番号 : 2号棟 6号室
- ●建設年度 : S57
- ●所在地 : 福島市渡利字砂沢26
(県営花見山団地3)
- ●間取り : 3DK
- ●階数 : 2階
- ●住戸単位面積 : 67.5m2
- ●家賃 :
| 収入区分 |
家賃 |
| 0〜104,000 |
18,000円
|
| 104,001〜123,000 |
20,800円
|
| 123,001〜139,000 |
23,800円
|
| 139,001〜158,000 |
26,800円
|
| 158,001〜186,000 |
30,700円
|
| 186,001〜214,000 |
35,400円
|
- ●駐車料金 : 2,000円
- ●学区 : 渡利小・渡利中
- ●備考 : 2階と3階の2層構成のメゾネットタイプです。
浴槽・ガス風呂釜はリース契約となります。
担当ガス会社:福島ガス(都市)。リース契約内容の変更はできません。
リース料・リース契約料は入居者負担となります。但し詳細についてはガス会社にお問い合わせ下さい。
共益費・町内会費などが生じます。
エレベーターはありません。
●災害リスク
土砂災害特別警戒・警戒区域です。
※駐車場は抽選となる場合があります。
|